Villa indipendente in VENDITA, Travo
- € 395.000
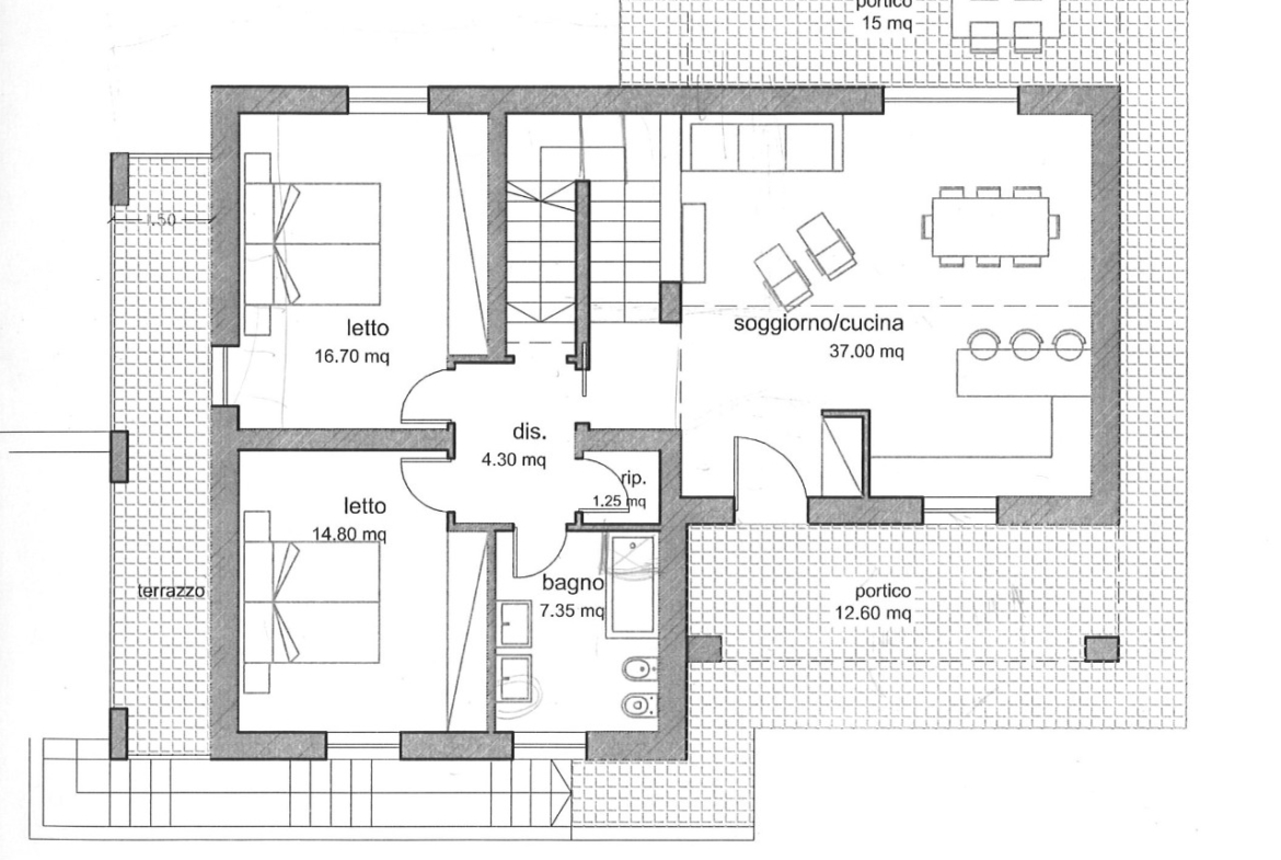
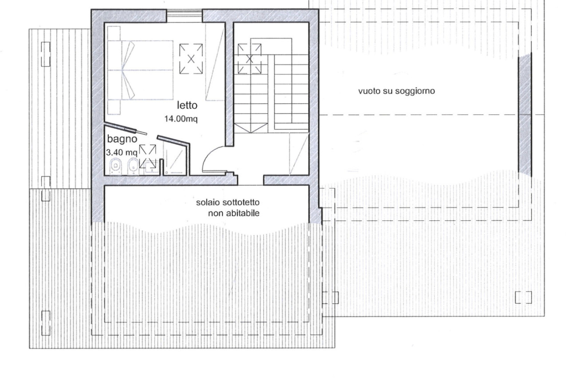
TRAVO – VILLA nuova indipendente di ampia metratura composta da soggiorno con cucina, tre camere da letto e due bagni. Ampio porticato coperti, box doppio, taverna-lavanderia e ampio giardino. Posssibilit di personalizzare le finiture e la disposizione interna secondo gli standard di elevata qualit odierni. Classe energetica B. CLASSE ENERGETICA: B (DL 192 190805)