Villa indipendente in VENDITA, Travo
- € 410.000
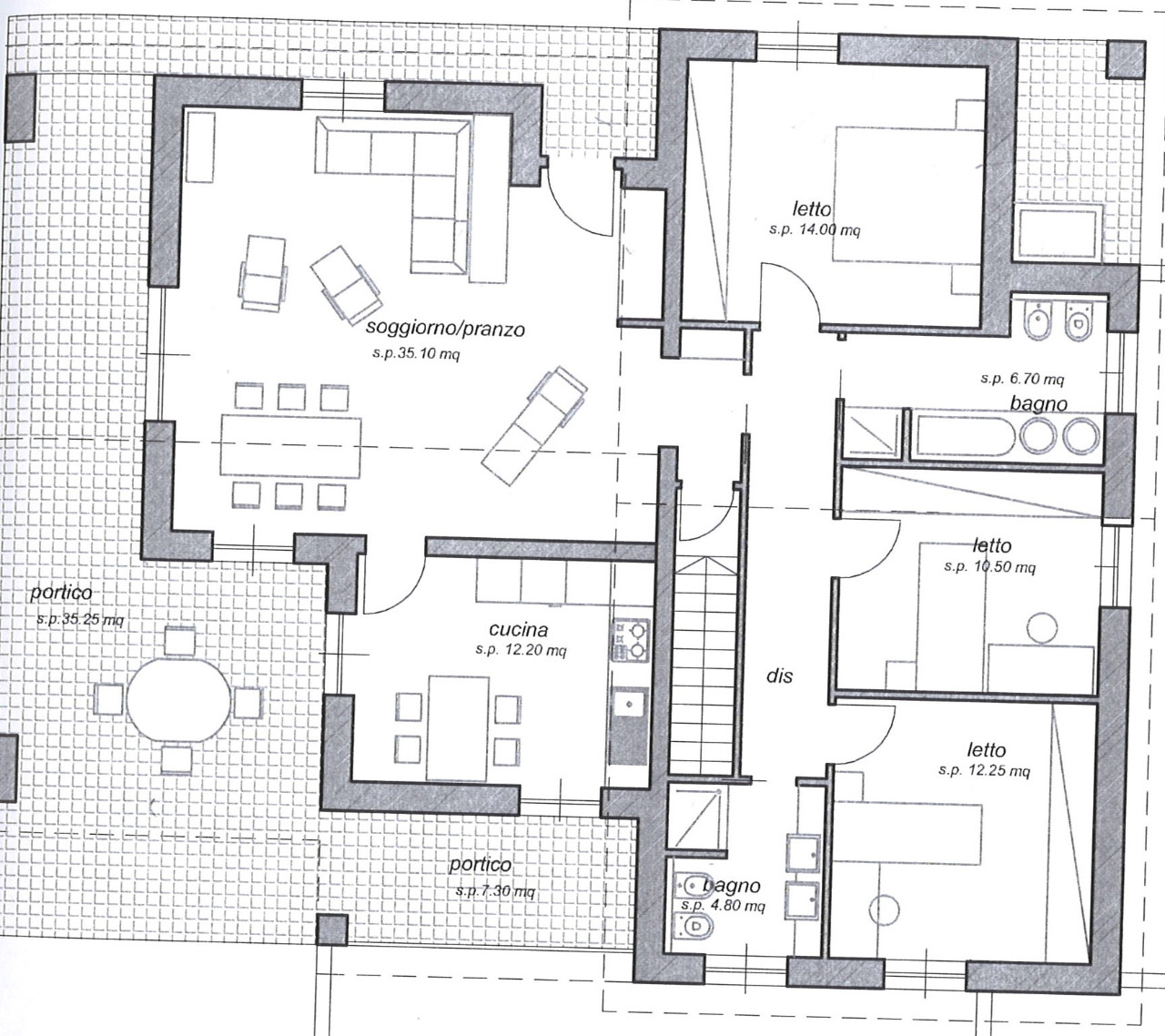
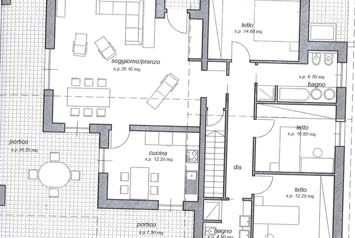
In nuova lottizzazione residenziale, VILLA singola indipendente monopiano composta da: soggiorno- cucina -3 camere letto- 2 bagni.Ampio porticato in cui pranzare e rilassarsi a due passi dal Trebbia . Cantina, lavanderia, taverna e box doppio si trovano al piano seminterrato. Le finiture interne e la disposizione sono personalizzabilia scelta dell’acquirente con la consulenza di uno studio di architettura , mentre i materiali di finitura si scelgono presso fornitori di alta e comprovata qualit